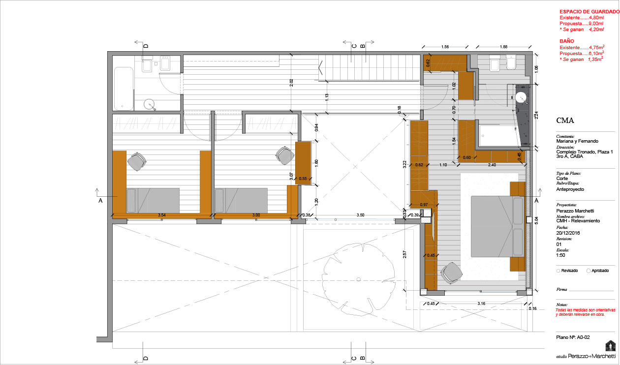
Casa CMA
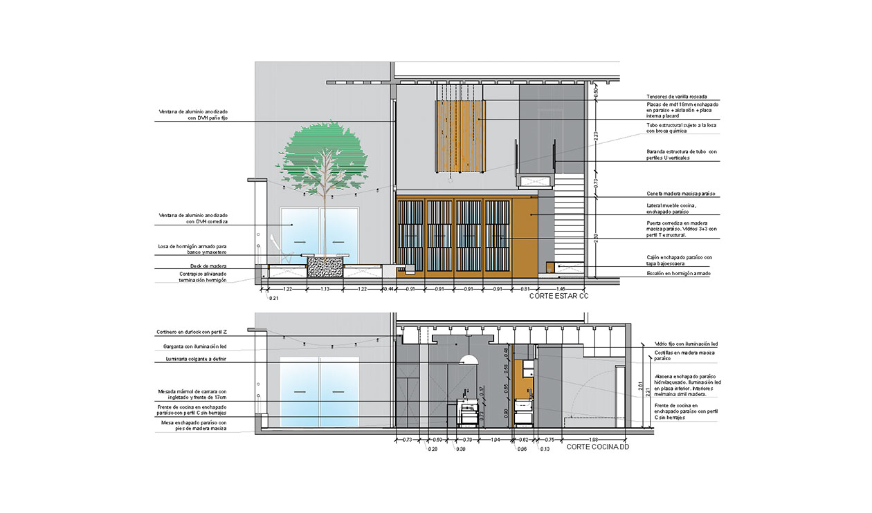
Obra de interiorismo que renueva escalera y cocina comedor a nuevo. El resto de los ambientes mantienen su locación pero renuevan el estilo.
Se demuele la pared que divide cocina y comedor generando un proyecto lineal que permite ganar espacio de cocción y almacenamiento. Detrás de ello la habitación de servicio y lavadero quedan en un ámbito más privado.
Los dormitorios no contaban con un espacio generoso de placard por lo que se gana espacio sobre la doble altura y se lo reviste en enchapados naturales para darle calidez e intimidad a un espacio frío.
El diseño exterior está en concordancia con los materiales interiores.
Contactate y recibí todo el asesoramiento para tu proyecto.