Local LQU

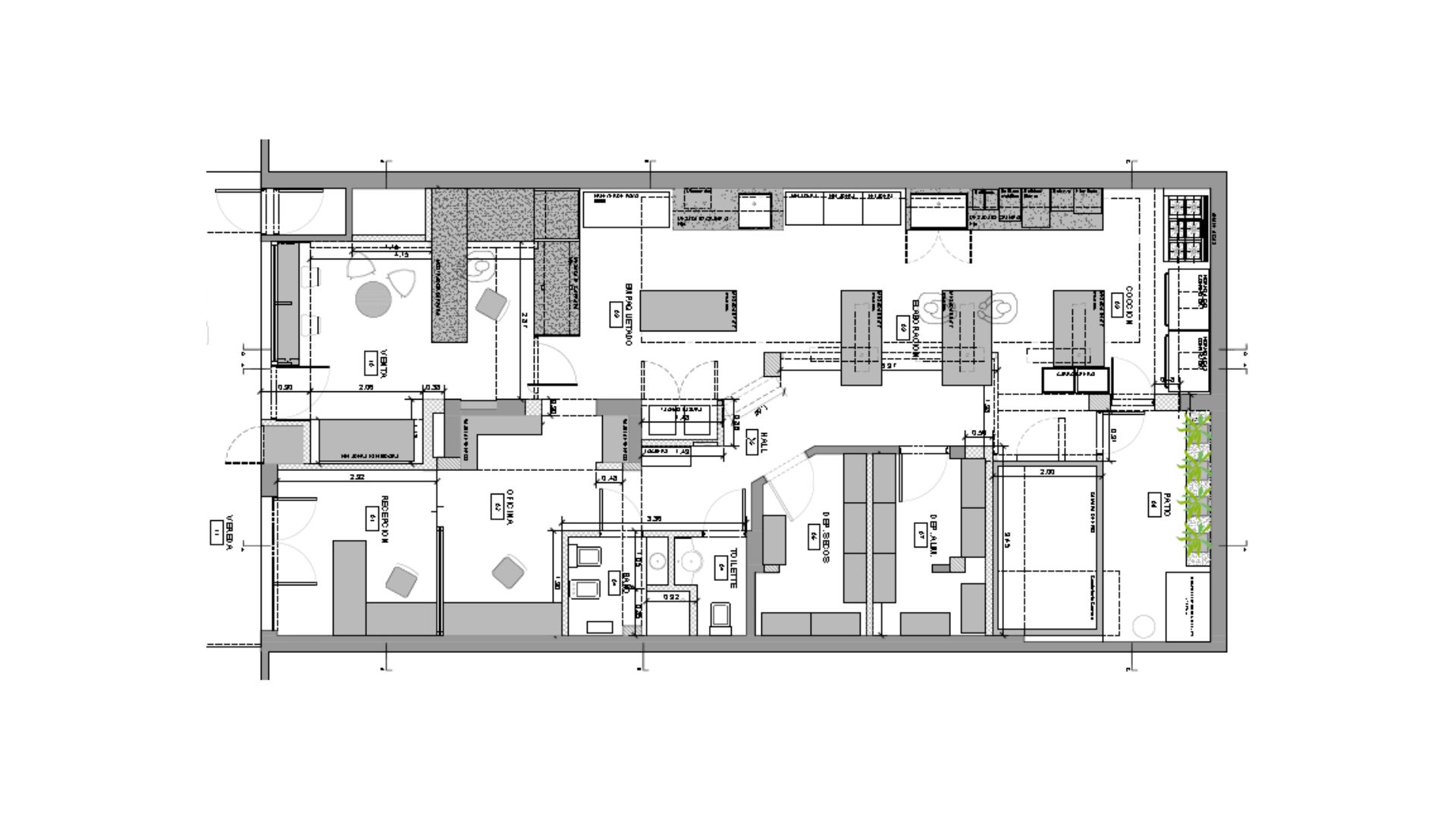
Se proyectó una nueva imagen comercial para una pastelería en una zona barrial.

El proyecto debía contemplar una zona para entregas, oficinas, depósito, cámara de frío y una gran cocina con espacio integrado.

Se calcularon los refuerzos estructurales para este proyecto que debía adaptarse a una casa vieja en mal estado, toda la iluminación e instalaciones se presupuestaron a nuevo.

Contactate y recibí todo el asesoramiento para tu proyecto.